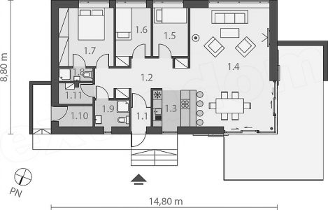
Plan
- Ulaz 3.04 m²
- Hodnik 17.75 m²
- Kuhinja 5.78 m²
- Dnevni boravak + trpezarija 41.6 m²
- Soba 7.29 m²
- Soba 7.86 m²
- Soba 13.75 m²
- Kupatilo 1.89 m²
- Kupatilo 3.89 m²
- Pomoćna prostorija 3.02 m²
- Pomoćna prostorija 3.06 m²
Ukupno: 108.93 m²
Cijena
- oko 40 hiljada evra
Pogledajte galeriju:








