Plan
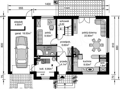
Prizemlje
- ulaz 4,1 m²
- hodnik 5,6 m²
- dnevni boravak 22,8 m²
- kuhinja 8 m²
- ostava 1,6 m²
- soba 9,5 m²
- kupatilo 3,7 m²
- kotlovnica 6,9 m²
- pomoćna prostorija 4,9 m²
- garaža 18,5 m²
Ukupno: 85,6 m²
Potkrovlje
- hodnik 7,3 m²
- soba 11,7 m²
- soba 11,5 m²
- garderoba 5,3 m²
- kupatilo 8 m²
- tavan 11,6 m²
Ukupno: 55,4 m²
Cijena
- oko 65 000 EUR
Pogledajte galeriju:










