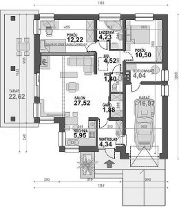
Plan
- Ulaz 4,34 m²
- Kuhinja 5,95 m²
- Dnevni boravak 27,52 m²
- Soba 12,22 m²
- Kupatilo 4,23 m²
- Soba 10,5 m²
- Hodnik 4,52 m²
- WC 1,4 m²
- Garderoba 1,88 m²
- Kotlovnica 4,04 m²
- Garaža 16,97 m²
- Terasa 22,62 m²
Ukupno: 93,57 m²
Cijena
- oko 36 hiljada evra
Pogledajte galeriju:







