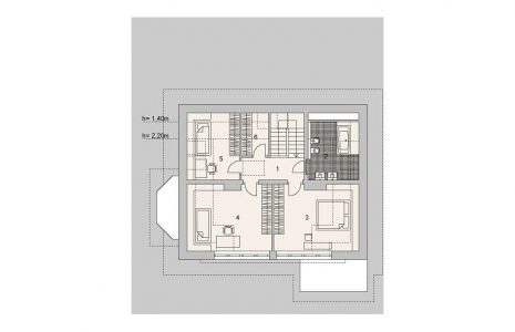
Plan
Površina
- 107.95 m²
Prizemlje
- Ulaz 4,65 m²
- Hodnik 6,05 m²
- Ostava 1,90 m²
- Kuhinja i trpezarija 14,80 m²
- Dnevni boravak 18,60 m²
- Stepenice 1,75 m²
- Perionica i kotlovnica 11,94 m²
- Kupatilo 1 60 m²
- Garaža 17,37 m²
Ukupno: 59,54 m2
Potkrovlje
- Hodnik 4,94 m² (4,94 m²)
- Kupatilo 6,09 m² (10,41 m²)
- Soba14,24 m² (19,55 m²)
- Soba 14,34 m² (19,66 m²)
- Soba 6,38 m² (12,43 m²)
- Garderoba 2,42 m² (4,07 m²)
Ukupno: 48,41 m² (71,06 m²)
Cijena
- oko 45 hiljada evra
Pogledajte galeriju:









