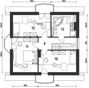
Plan
- Ulaz 5 m²
- Hodnik 8,6 m²
- Kuhinja + ostava 10,4 m²
- Dnevni boravak + trpezarija 30,7 m²
- Kupatilo 4,2 m²
- Kotlovnica 8,6 m²
- Stepenice 3,6 m²
- Soba 11 m²
- Hodnik 7,1 m²
- Soba 14,7 m² (18,7 m²)
- Soba 15,9 m² (19,8 m²)
- Soba 14,5 m² (18,9 m²)
- Kupatilo 8 m² (11,8 m²)
Ukupno: 133,7 m² (prizemlje 82,1 m², potkrovlje 60,2 m² / 76,3 m²)
Cijena
- oko 53 hiljade evra
Pogledajte galeriju:









