Površina:
- 170.05
Plan
Prizemlje
- Ulaz 3.67 m²
- Ostava 2.01 m²
- Kuhinja 10,23 m²
- Hodnik 18,25 m²
- Dnevni boravak + trpezarija 43.57 m²
- Soba 9.63 m²
- Soba 10,11 m²
- Kupatilo 2.81 m²
- Kotlovnica 5.92 m²
- Garaža 21.46 m²
Ukupno 127.66 m²
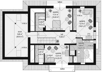
Potkrovlje
- Hodnik 10.66 m²
- Kupatilo 8.99 m²
- Soba 12.74 m²
- Soba 17.61 m²
- Garderoba 4.29 m²
- Garderoba 2.51 m²
- Soba 12.97 m²
- Tavan 9.69 m²
Ukupno 79.46 m² (115.56 m²)
Pogledajte galeriju:












