Prizemlje
- Ulaz 4,85 m²
- Hodnik 4.21 m²
- Kuhinja 7,07 m²
- Dnevni boravak + trpezarija 25,17 m²
- Stepenice + hodnik 8.74 m²
- Soba 14.87 m²
- Soba 17,71 m²
- Kupatilo 3,2 m²
- WC 1,85 m²
- Kotlovnica 4,26 m²
- Garaža 29,79 m²
- Terasa 23,72 m²
Ukupno: 121.72 m²
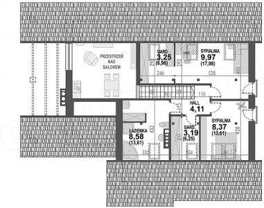
Potkrovlje
- Hodnik 4.11 m²
- Kupatilo 8,58 m² (13,61 m²)
- Garderoba 3,19 m² (6,25 m²)
- Soba 8.37 m² (13,61 m²)
- Soba 9,97 kvadrata (17,98 m²)
- Garderoba 3,25 m² (6,96 m²)
Ukupno: 37.47 m² (62,52 m²)
Pogledajte galeriju:












