Plan
Prizemlje
- ulaz 2,9 m²
- hodnik 7,18 m²
- ostava 2,63 m²
- kuhinja 8,72 m²
- dnevni boravak + trpezarija 31,11 m²
- soba 10,15 m²
- kupatilo 3,06 m²
- pomoćna prostorija – garderoba 3,5 m²
- kotlovnica 6,59 m²
- garaža 17,86 m²
Ukupno: 93,7 m²
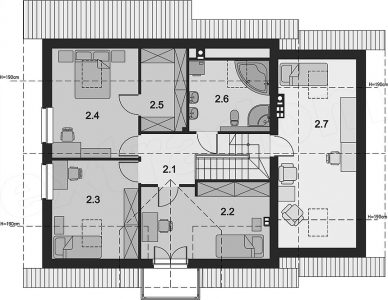
Potkrovlje
- hodnik 5,94 m²
- soba 12,12 m² (16,42 m²)
- soba 10,25 m² (14,64 m²)
- soba 11,9 m² (16,29 m²)
- garderoba 4,19 m² (6,23 m²)
- kupatilo 7,02 m² (9,49 m²)
- tavan 18,35 m² (25,15 m²)
Ukupno: 69,77 m² (94,16 m²)
Cijena
- oko 70 000 EUR
Pogledajte galeriju:



















