Plan
Prizemlje
- Ulaz 5,7 m²
- Hodnik 7 m²
- Kuhinja 10 m²
- Dnevni boravak 28,3 m²
- Soba 13 m²
- Kupatilo 4,6 m²
- Kotlovnica 5,8 m²
- Garaža 24,2 m²
Ukupno: 98,6 m²
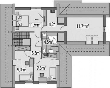
Potkrovlje
- Hodnik 5,5 m²
- Soba 11,6 m²
- Garderoba 4,2 m²
- Tavan 11,7 m²
- Kupatilo 4,5 m²
- Soba 9,3 m²
- Soba 9 m²
Ukupno: 55,8 m²
Cijena
- oko 50 hiljada evra
Pogledajte galeriju:










