Plan
Prizemlje
- ulaz 5 m²
- hodnik 8,6 m²
- kuhinja + ostava 10,4 m²
- dnevni boravak + trpezarija 30,7 m²
- kupatilo 4,2 m²
- kotlovnica 8,6 m²
- stepenice 3,6 m²
- soba 11 m²
Ukupno: 82,1 m²
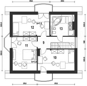
Potkrovlje
- hodnik 7,1 m²
- soba 14,7 m² (18,7 m²)
- soba 15,9 m² (19,8 m²)
- soba 14,5 m² (18,9 m²)
- kupatilo 8 m² (11,8 m²)
Ukupno: 60,2 m² (76,3 m²)
Cijena
- oko 65 000 EUR
Pogledajte galeriju:













