Plan
Prizemlje
- ulaz 5,17 m²
- hodnik 11,31 m²
- kuhinja 10,75 m²
- dnevni boravak 31,53 m²
- soba 9,7 m²
- kupatilo 2,42 m²
- kotlovnica 5,45 m²
- garaža 18,13 m²
Ukupno: 94,46 m²
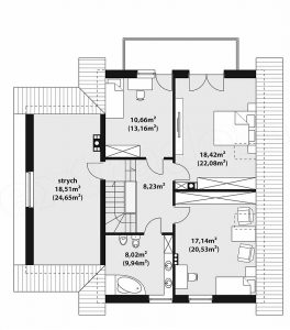
Potkrovlje
- hodnik 8,23 m²
- soba 18,42 m² (22,08 m²)
- soba 10,66 m² (13,16 m²)
- kupatilo 8,02 m² (9,94 m²)
- soba 17,14 m² (20,53 m²)
- tavan 18,51 m² (24,65 m²)
Ukupno: 80,98 m² (98,59 m²)
Cijena
- oko 75 000 EUR
Pogledajte galeriju:
















