Plan
Prizemlje
- ulaz 5,28 m²
- dnevni boravak + trpezarija 58,97 m²
- kuhinja 18,14 m²
- ostava 3,66 m²
- garderoba 3,38 m²
- kotlovnica 6,16 m²
- garaža 47,64 m²
- pomoćna prostorija 5,69 m²
- soba 14,56 m²
- kupatilo 5,49 m²
- soba 15,68 m²
- pomoćna prostorija 0,98 m²
- soba 12,07 m²
- WC 2,06 m²
- hodnik 19,61 m²
- soba 18,81 m²
- kupatilo 10,1 m²
- garderoba 7,39 m²
Ukupno: 255,67 m²
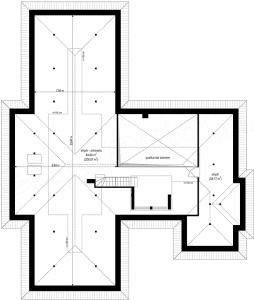
Potkrovlje
- mezanin 84,64 m² (206,57 m²)
- tavan 38,77 m²
Ukupno: 123,41 m² (245,34 m²)
Cijena
- oko 120 000 EUR
Pogledajte galeriju:



















