Plan
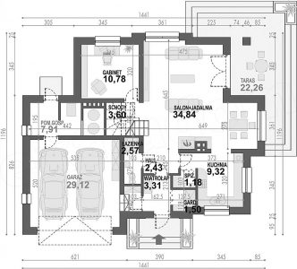
Prizemlje
- ulaz 3,31 m²
 - garderoba 1,5 m²
 - kuhinja 9,32 m²
 - ostava 1,18 m²
 - dnevni boravak + trpezarija 34,84 m²
 - hodnik 2,43 m²
 - kupatilo 2,57 m²
 - stepenice 3,6 m²
 - soba 10,78 m²
 - pomoćna prostorija 7,91 m²
 - garaža 29,12 m²
 
Ukupno: 106,56 m²
Potkrovlje
- hodnik 5,77 m²
 - soba 14,17 m²
 - soba 11,62 m² (18,48 m²)
 - kupatilo 7,29 m² (11,56 m²)
 - kupatilo 8,59 m² (12,96 m²)
 - garderoba 4,19 m² (8,33 m²)
 - soba 17,74 m² (22,65 m²)
 
Ukupno: 69,37 m² (93,92 m²)
Cijena
- oko 76 000 EUR
 
Pogledajte galeriju:
    







