Plan
Prizemlje
- dnevni boravak 18,5 m²
- soba 9 m²
- kuhinja 7 m²
- ulaz 3,5 m²
- hodnik 3,3 m²
- kupatilo 2,7 m²
- garaža 18,5 m²
- kotlovnica 7,6 m²
- stepenice 2,1 m²
Ukupno: 72,2 m²
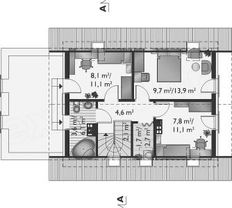
Potkrovlje
- soba 9,7 m² (13,9 m²)
- soba 8,1 m² (11,1 m²)
- soba 7,8 m² (11,1 m²)
- hodnik 4,6 m²
- kupatilo 3,6 m² (6,1 m²)
- pomoćna prostorija 1,7 m² (2,7 m²)
- stepenice 2,1 m²
Ukupno: 37,6 m² (51,6 m²)
Cijena
- oko 39000 EUR
Pogledajte galeriju:









