Plan
Prizemlje
- ulaz 5,54 m²
- garderoba 5,91 m²
- pomoćna prostorija 7,37 m²
- kuhinja 10,4 m²
- dnevni boravak 35,11 m²
- garderoba 5,7 m²
- kupatilo 2,64 m²
- hodnik 6,96 m²
- soba 10,93 m²
- garaža 43,19 m²
Ukupno: 133,75 m²
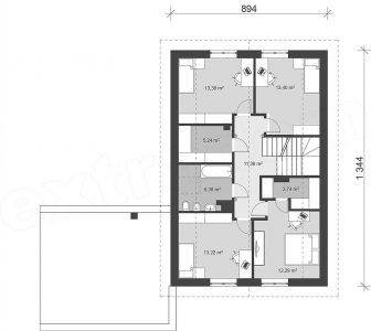
Potkrovlje
- soba 12,29 m²
- soba 13,22 m²
- kupatilo 6,38 m²
- garderoba 5,24 m²
- soba 13,38 m²
- soba 13,4 m²
- garderoba 3,74 m²
- hodnik 11,38 m²
Ukupno: 79,03 m²
Cijena
- oko 95 000 EUR
Pogledajte galeriju:









