Plan
Prizemlje
- ulaz 4 m²
- ostava 2,3 m²
- kuhinja 10,8 m²
- hodnik 12 m²
- kupatilo 3,4 m²
- dnevni boravak + trpezarija 42,5 m²
- soba 17,1 m²
- garderoba 3,9 m²
- kotlovnica 6,4 m²
- pomoćna prostorija 8,9 m²
- garaža 35,7 m²
Ukupno: 147 m²
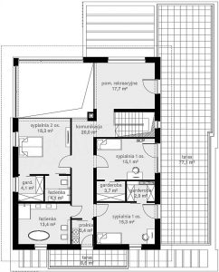
Potkrovlje
- hodnik 20 m²
- soba 17,7 m²
- soba 15,1 m²
- garderoba 3,7 m²
- garderoba 2,9 m²
- soba 15,3 m²
- pomoćna prostorija 3,4 m²
- kupatilo 13,4 m²
- kupatilo 4,1 m²
- garderoba 4,1 m²
- soba 18,3 m²
Ukupno: 118 m²
Cijena
- oko 130 000 EUR
Pogledajte galeriju:


























