Plan
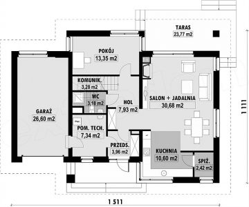
Prizemlje
- ulaz 3,96 m²
- hodnik 7,93 m²
- kuhinja 10,6 m²
- ostava 2,42 m²
- dnevni boravak + trpezarija 30,68 m²
- soba 13,35 m²
- hodnik 3,28 m²
- kupatilo 3,18 m²
- pomoćna prostorija 7,34 m²
- garaža 26,6 m²
Ukupno: 109,34 m²
Potkrovlje
- hodnik 12,72 m² (17,78 m²)
- soba 14,56 m² (26,79 m²)
- kupatilo 7,41 m² (13,51 m²)
- soba 10,17 m² (16,86 m²)
- soba 9,53 m² (16,16 m²)
Ukupno: 54,39 m² (91,1 m²)
Cijena
- oko 80 000 EUR
Pogledajte galeriju:








