Plan
Prizemlje
- hodnik 6,87 m²
- wc 2,63 m²
- kuhinja 6,55 m²
- dnevni boravak + trpezarija 18,3 m²
Ukupno: 34,35 m²
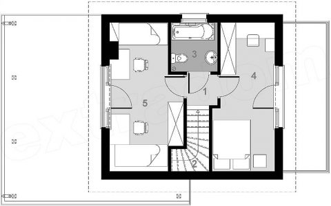
Potkrovlje
- hodnik 1,44 m²
- stepenice 3,05 m²
- kupatilo 3,5 m²
- soba 10,14 m² (13,27 m²)
- soba 12,05 m² (15,06 m²)
Ukupno: 30,18 m² (36,32 m²)
Cijena
- oko 32 000 EUR
Pogledajte galeriju:








