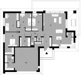
Plan
Prizemlje
- ulaz 8,3 m²
- kuhinja 14,5 m²
- ostava 2,2 m²
- dnevni boravak + trpezarija 35,8 m²
- soba 12,8 m²
- soba 14,2 m²
- soba 17 m²
- soba + garderoba 19,1 m²
- kupatilo 6,6 m²
- hodnik 9,5 m²
- pomoćna prostorija 2,3 m²
- wc 1,5 m²
- kotlovnica 4,6 m²
- garaža 41,5 m²
Ukupno: 189,9 m²
Cijena
- oko 95 000 EUR
Pogledajte galeriju:









