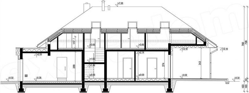
Plan
Prizemlje
- ulaz 4 m²
- ostava 2 m²
- kuhinja 8,7 m²
- dnevni boravak + trpezarija 29,1 m²
- soba 10,2 m²
- soba 16,2 m²
- soba 11,5 m²
- kupatilo 8,8 m²
- wc 1,5 m²
- hodnik 15,3 m²
- kotlovnica 5,7 m²
- garaža 36 m²
Ukupno: 149 m²
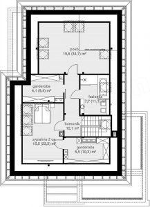
Potkrovlje
- hodnik 12,1 m²
- soba 19,6 m² (34,7 m²)
- kupatilo 7,7 m² (11,1 m²)
- garderoba 4,1 m² (9,4 m²)
- soba 15,5 m² (23,2 m²)
- garderoba 5,5 m² (10,3 m²)
Ukupno: 64,5 m² (100,8 m²)
Cijena
- oko 95 000 EUR
Pogledajte galeriju:






















