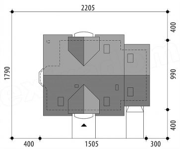
Plan
Prizemlje
- ulaz 3,2 m²
- hodnik 6,5 m²
- ostava 1,7 m²
- kuhinja 9,9 m²
- dnevni boravak + trpezarija 33 m²
- soba 10,4 m²
- kupatilo 2,9 m²
- pomoćna prostorija 6,7 m²
- garaža 20,8 m²
Ukupno: 95,1 m²
Potkrovlje
- hodnik 6,4 m²
- kupatilo 6,2 m²
- soba 14,9 m²
- soba 16,6 m²
- soba 15 m²
- tavan 13,3 m²
Ukupno: 72,4 m²
Cijena
- oko 80 000 EUR
Pogledajte galeriju:
















