Plan
Podrum
- hodnik 4,8 m²
- podrum 12,1 m²
- pomoćna prostorija 9 m²
- kotlovnica 12,8 m²
- garaža 32,1 m²
Ukupno: 70,8 m²
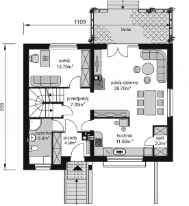
Prizemlje
- ulaz 4,9 m²
- hodnik 7 m²
- kuhinja 11 m²
- ostava 2,2 m²
- dnevni boravak + trpezarija 28,7 m²
- soba 12,7 m²
- kupatilo 5,8 m²
Ukupno: 72,3 m²
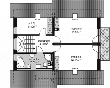
Potkrovlje
- hodnik 4,8 m²
- kupatilo 7,7 m²
- soba 16,1 m²
- soba 15,9 m²
- soba 8,3 m²
Ukupno: 52,8 m²
Cijena
- oko 65 000 EUR
Pogledajte galeriju:











