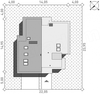
Plan
Prizemlje
- ulaz 3,9 m²
- hodnik 20,9 m²
- ostava 1,5 m²
- kuhinja 11 m²
- trpezarija 13,3 m²
- dnevni boravak 23,3 m²
- soba 15,3 m²
- kupatilo 3,9 m²
- pomoćna prostorija 4 m²
- kotlovnica 5,8 m²
- garaža 31,8 m²
Ukupno: 134,7 m²
Potkrovlje
- hodnik 16,1 m²
- soba 15 m² (15,3 m²)
- pomoćna prostorija 6,3 m²
- kupatilo 4,1 m² (6,8 m²)
- garderoba 3,4 m² (5,6 m²)
- soba 15,1 m² (20,5 m²)
- soba 17,1 m² (19,5 m²)
- mezanin 5,6 m² (9,5 m²)
Ukupno: 82,7 m² (99,6 m²)
Cijena
- oko 115 000 EUR
Pogledajte galeriju:












