Plan
Prizemlje
- ulaz 6,3 m²
- ostava 1,6 m²
- kuhinja 11,5 m²
- trpezarija 19,6 m²
- dnevni boravak 24,9 m²
- soba 13,5 m²
- kupatilo 4,5 m²
- pomoćna prostorija 5,3 m²
- ulaz 3,3 m²
- garaža 36,7 m²
Ukupno: 127,2 m²
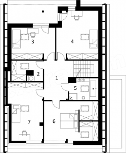
Potkrovlje
- hodnik 12,3 m²
- pomoćna prostorija 4,7 m² (7,2 m²)
- soba 12,4 m² (16,8 m²)
- soba 16,8 m² (23,5 m²)
- kupatilo 4,3 m² (7,2 m²)
- soba 20,5 m² (25,9 m²)
- soba 14,1 m² (22,9 m²)
Ukupno: 85,1 m² (115,8 m²)
Cijena
- oko 95 000 EUR
Pogledajte galeriju:








