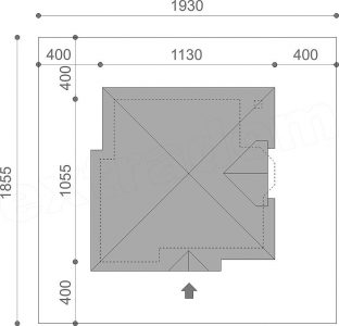
Plan
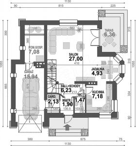
Prizemlje
- Ulaz 1,9 m²
- Hodnik + stepenice 6,23 m²
- Dnevni boravak 27 m²
- Trpezarija 4,93 m²
- Kuhinja 7,18 m²
- WC 1,47 m²
- Garderoba 2,13 m²
- Kotlovnica 7,08 m²
- Garaža 15,94 m²
- Terasa 6,36 m²
Ukupno: 73,86 m²
Potkrovlje
- Hodnik 6,34 m² (7,77 m²)
- Soba 8,93 m² (13,67 m²)
- Soba 17,69 m² (22,53 m²)
- Soba 9,8 m² (14,73 m²)
- Kupatilo 5,37 m² (11,83 m²)
Ukupno: 48,13 m² (70,53 m²)
Cijena
- oko 48 hiljada evra
Pogledajte galeriju:








