Ako vam se dopada, podijelite sa prijateljima!
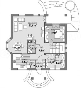
Prizemlje
- Ulaz 2.7 m²
- Hodnik 9.4 m²
- Kuhinja 8.8 m²
- Ostava 1.3 m²
- Trpezarija 9.2 m²
- Dnevna soba 27.8 m²
- WC 3.4 m²
- Soba 11.9 m²
- Garderoba 4.6 m²
- Pomoćna prostorija 4.5 m²
Ukupno: 83.6 m²
Potkrovlje
- Hodnik 5.9 m²
- Pomoćna prostorija 3.1 m²
- Kupatilo 5.7 m²
- Soba 11.2 m²
- Soba 11.6 m²
Ukupno: 37.5 m²
Pogledajte galeriju:









