Pretraga:
Moja kuća i vrt
Ideje i savjeti za uređenje doma
Primary Menu
5
Navigacija članaka
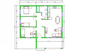
Montažna kuća Katja Tip 121