Pretraga:
Moja kuća i vrt
Ideje i savjeti za uređenje doma
Primary Menu
3
Navigacija članaka
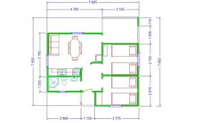
Montažna kuća Tip-44 površine 50kv